100) ? false : true; navIsShown = (window.pageYOffset > heroHeight) ? true : false; triggerTransitions = window.pageYOffset > (heroHeight / 2) ? true : false; if (navIsOpen && !atTop && !navIsShown) navIsOpen = false; ">
Toggle Navigation
28 Nutter Rd, North Reading, MA 01864
Images
Videos
3D Tour
Floor Plans
Map
View Gallery
3D Tour
Slideshow
Photo Grid
Hide
Previous
Next
28 Nutter Rd
North Reading, MA 01864
Images
Show more
Slideshow
Photo Grid
Hide
Previous
Next
Videos
Content Coming Soon
3D Tour
Content Coming Soon
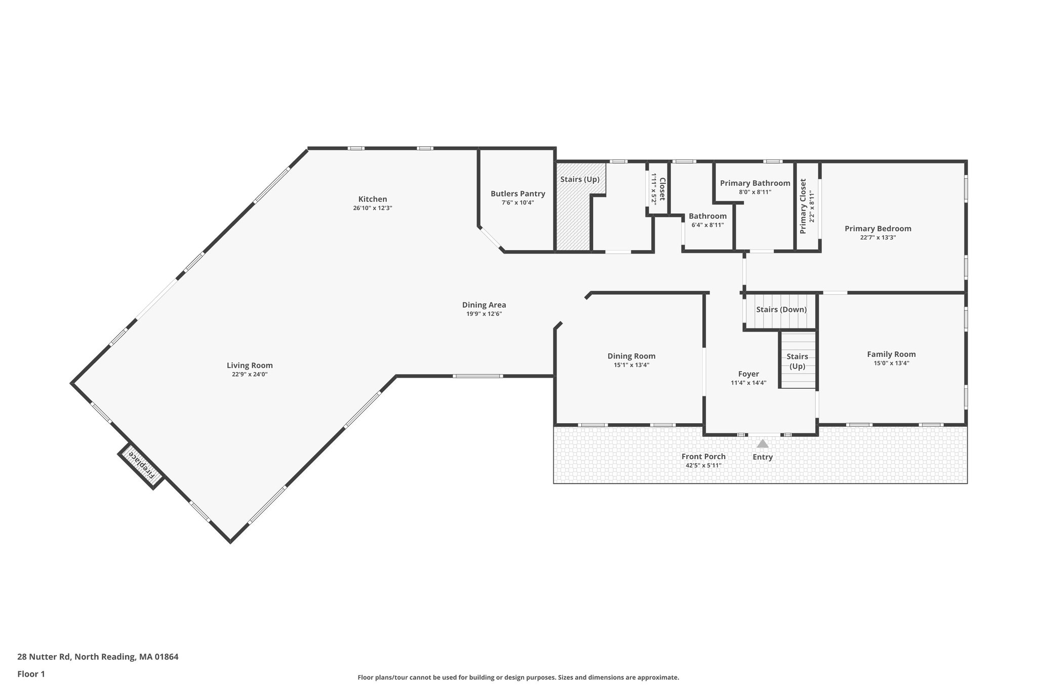
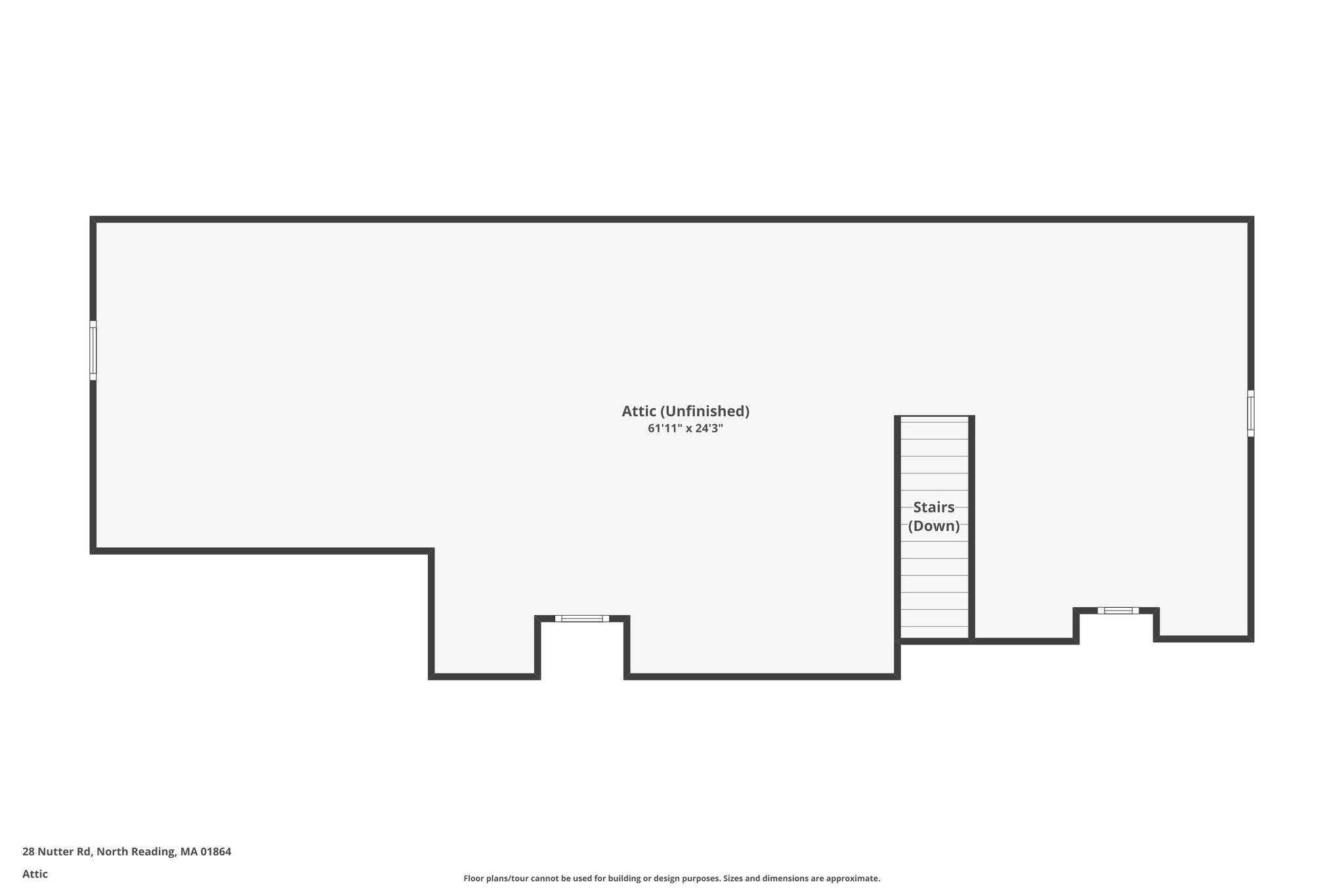
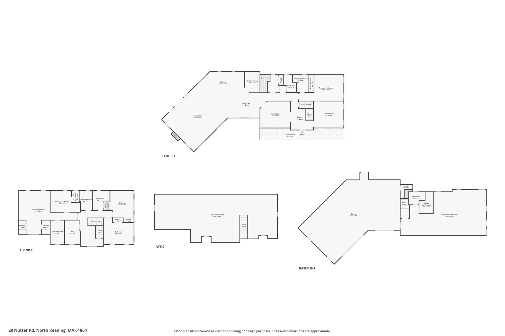
Floor Plans
Slideshow
Photo Grid
Hide
Previous
Next